Amelia
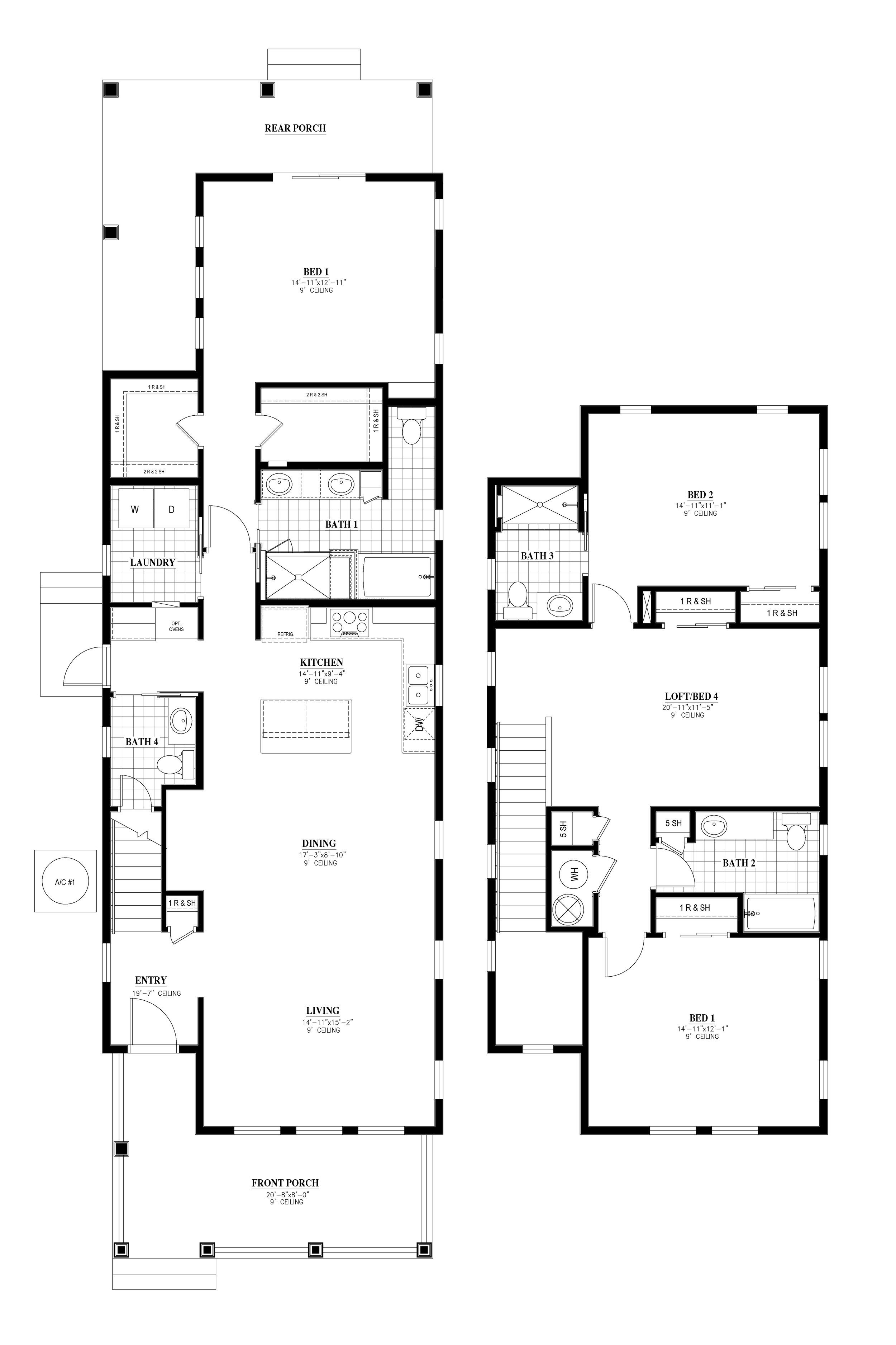
Looking for historic charm, but with a master down plan? Our Amelia has got you covered. At 2,231sqft, you enter this home into a traditional entry enclave that opens up into a large open first floor. The living, dining, kitchen flow is warm and inviting with the master suite carefully secluded just off the back of the house. The second floor offers an extra large loft, perfect for a home office, gym, play area or optional fourth bedroom.
2231sqft
3bd
3.5ba
+loft
641sqft covered porches


 
            
              
            
            
          
              