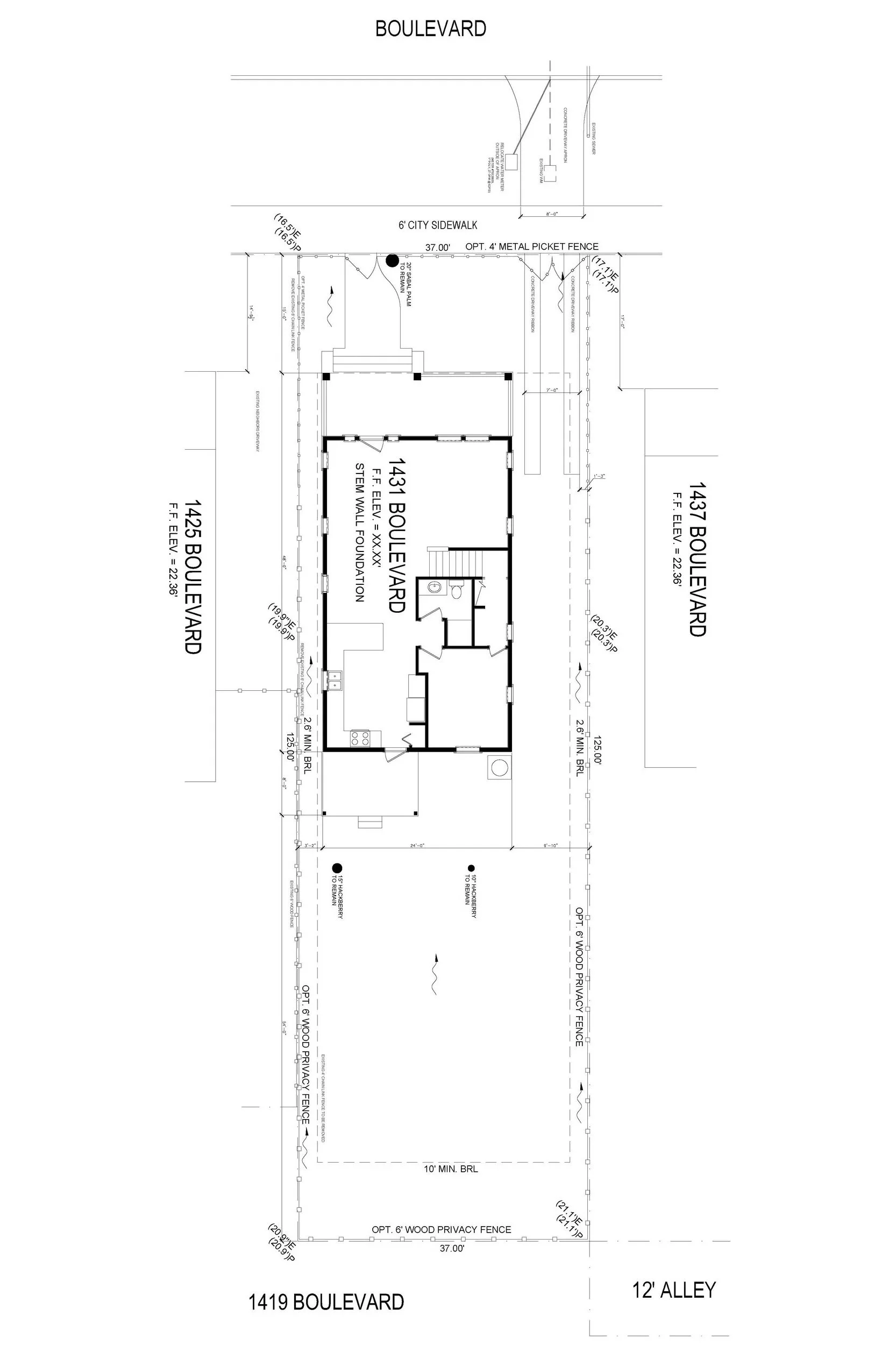
Located in historic Springfield, this homesite is across the street from Klutho park and looks out over the tennis courts. It is extra wide and features a private driveway.
This new plan features a large loft the opens to the upstairs porch and we have added a covered rear porch.
Our energy-efficient designs will also save you approximately 55% on your electric bill!
1431 BOULEVARD READY IN 9 MONTHS
1920sqft
3bd
3ba
loft
384sqft Front covered porch
96sqft Rear covered Porch

